대흥교회 60주년 기념관 설립

기념관소개

60주년 기념, 제1주차장 부지 부속관 및 본당 연결복도 신축.
전도 본부 부지 숙소 및 사택용 3층 건물 신축 사업.


기존 교육부서의 성장과 친교 및 선교활동을 위한 공간이 부족하여 다목적 강당, 유아 교육시설, 소그룹실, 카페 등 교회발전과 미래를 대비하고자 하여 필요함.


기념관 계획 개요

  • 2023년 03월 05일 당회에서 의결
  • 2023년 04월 02일 제직회 결의
  • 2023년 04월 16일 건축위원회 구성
  • 2024년 04월 05일 건축설계 공모
  • 2024년 05월 26일 건축설계 선정 : 창시 건축사 사무소
  • 2024년 09월 11일 부속동 건축허가 : 울산 남구청
  • 2024년 12월 26일 기념관 건축허가 : 울산 남구청
  • 2025년 01월 14일 시공업체 공모
  • 2025년 03월 16일 시공업체 선정 : 나노종합건설

공지사항

  • 2025년 03월 28일 대흥교회 60주년 기념관 설립 상황 공유를 위한 홈페이 대흥교회 60주년 기념관 설립 상황 공유를 위한 홈페이지를 개설하였습니다.

    대흥교회 60주년 기념관 설립 상황 공유를 위한 홈페이지를 개설하였습니다.

대흥교회 60주년 기념관 설립

건축설계

Summary

연면적 1,719.11㎡(약 520평) 층면적 324.72㎡(약 98평)
건축구조 철근콘트리트조 & 철골조
외장재 라임스톤 & 스터코 지붕재 콘크리트슬라브
구조재 철근콘크리트 & 철골 창호재 AL 단열바 시스템창호

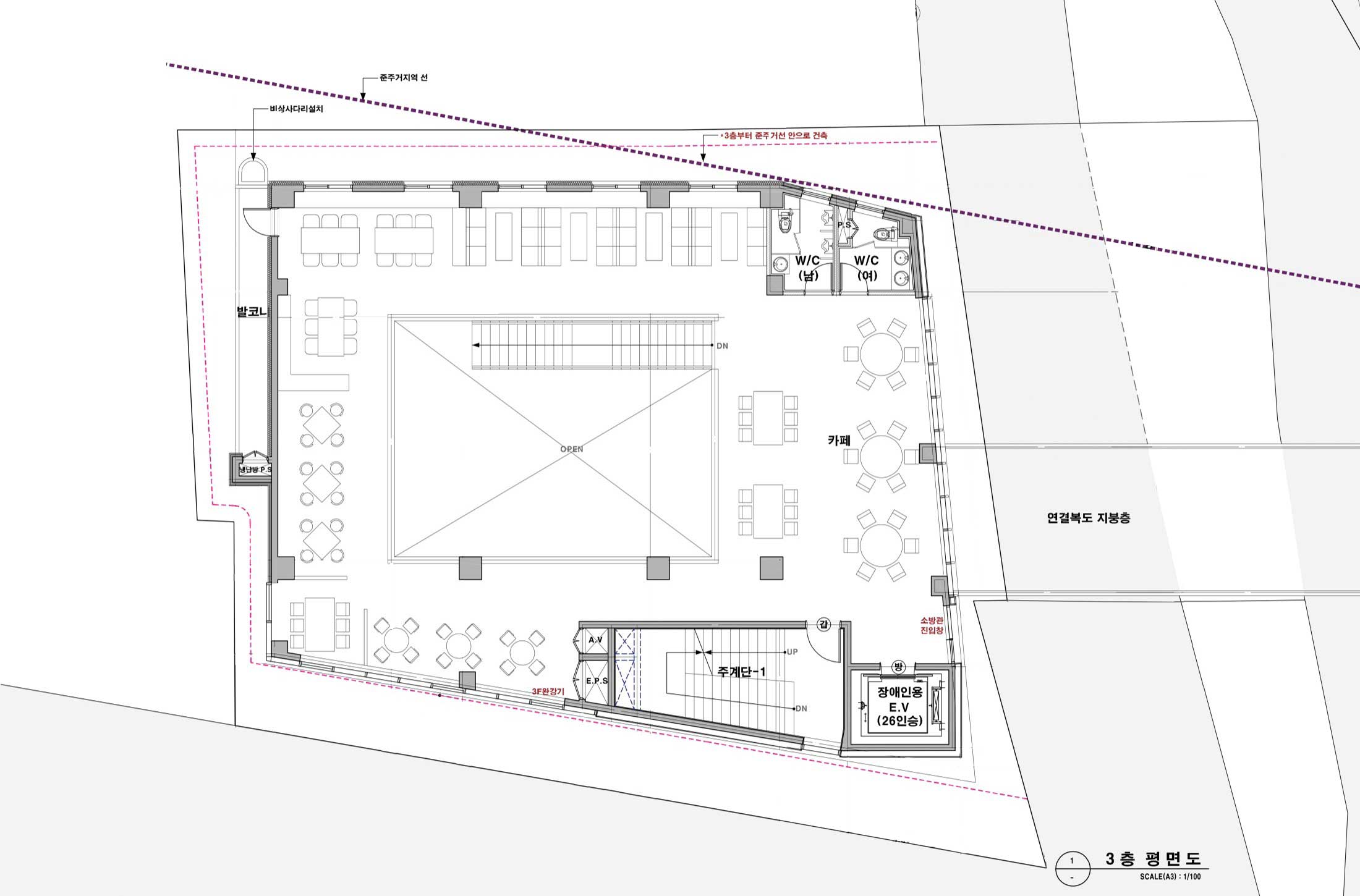
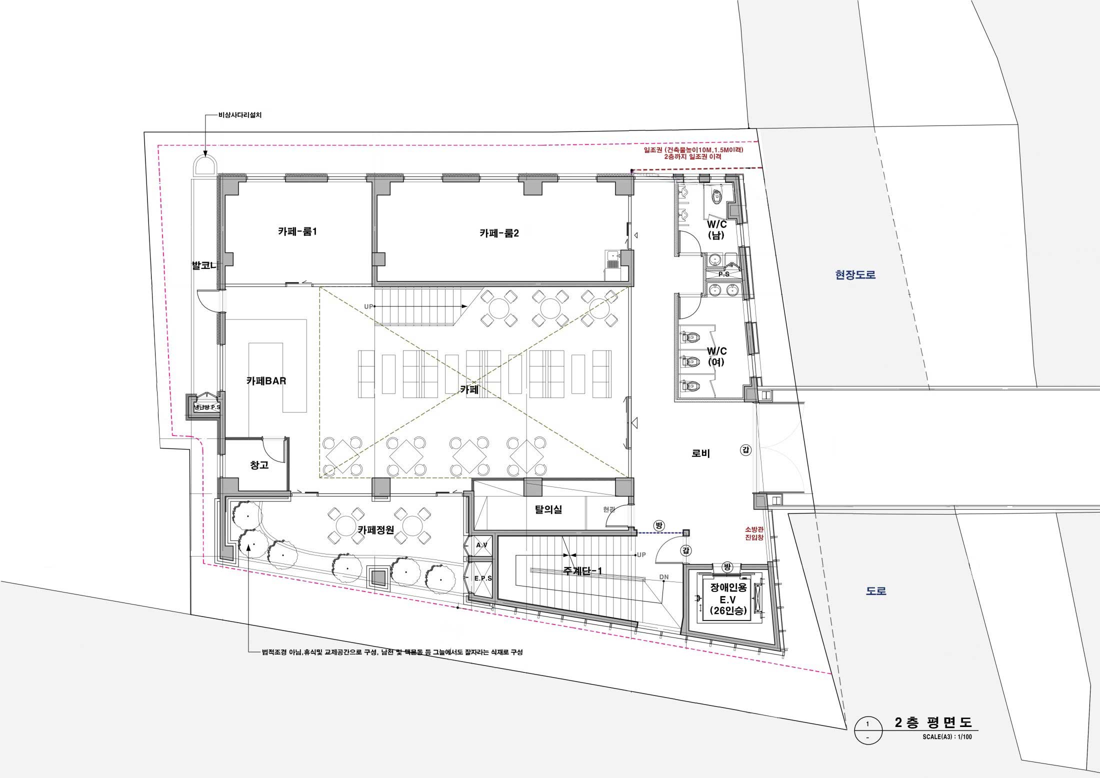
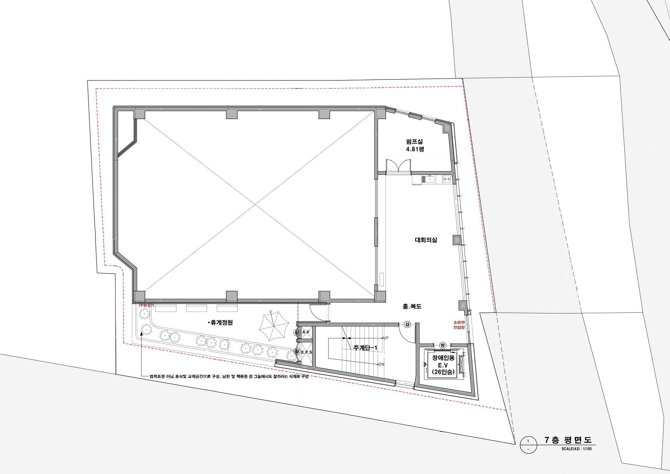
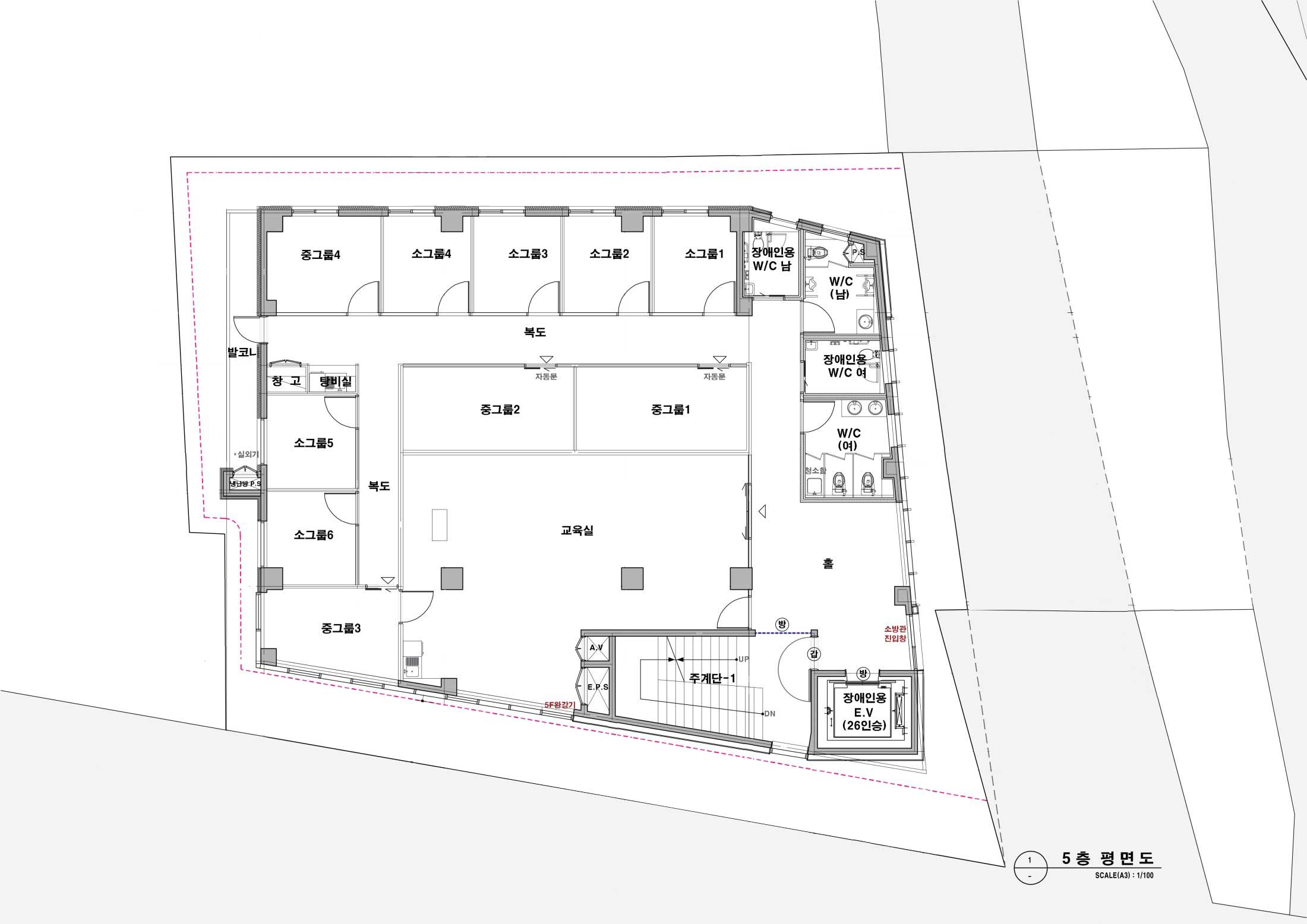
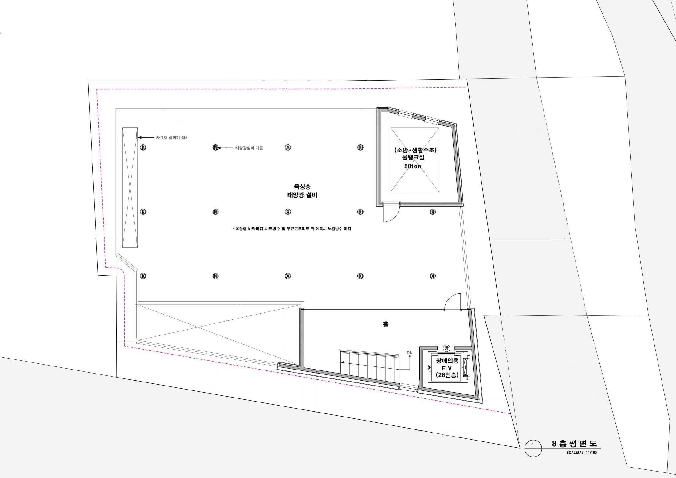
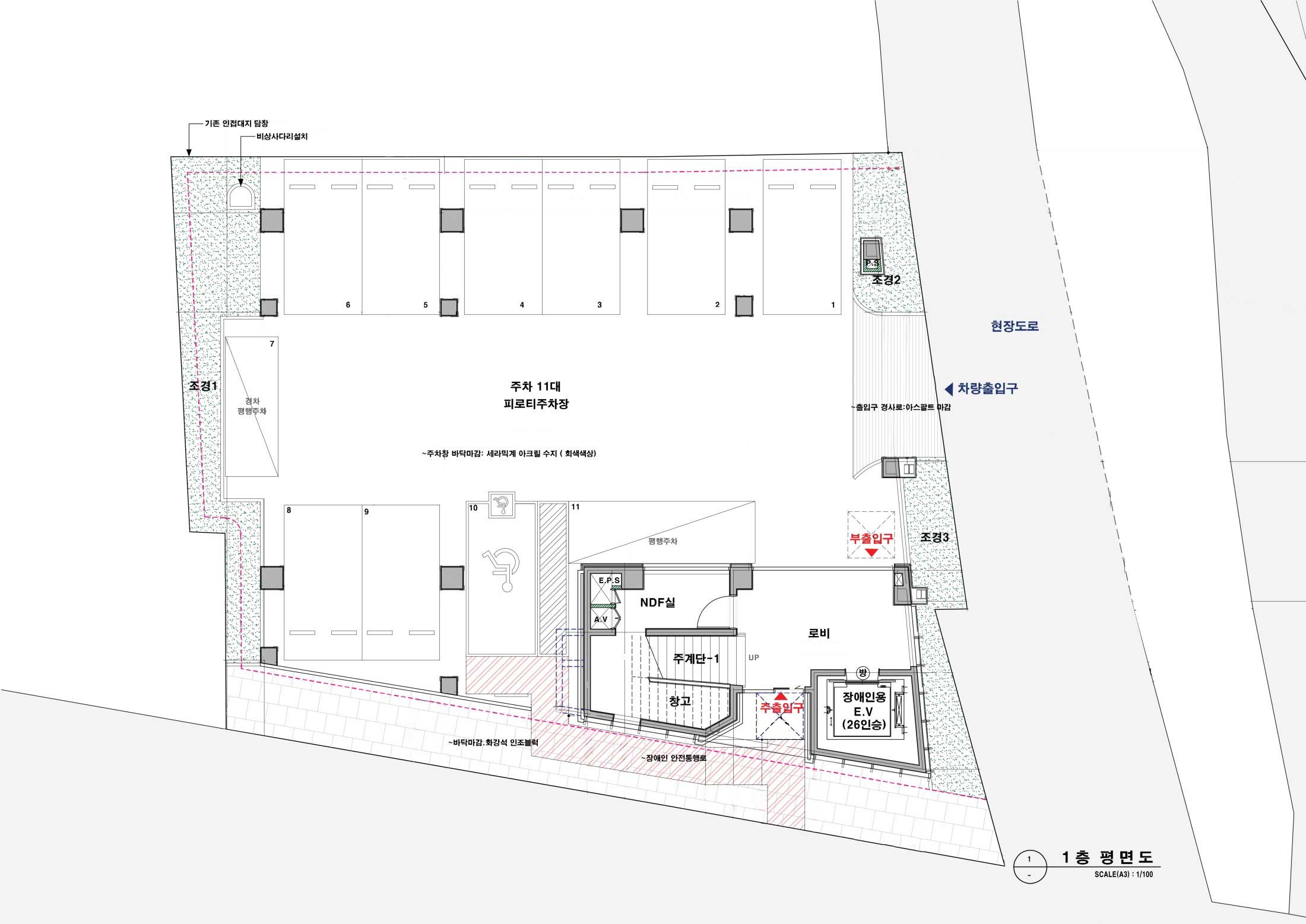
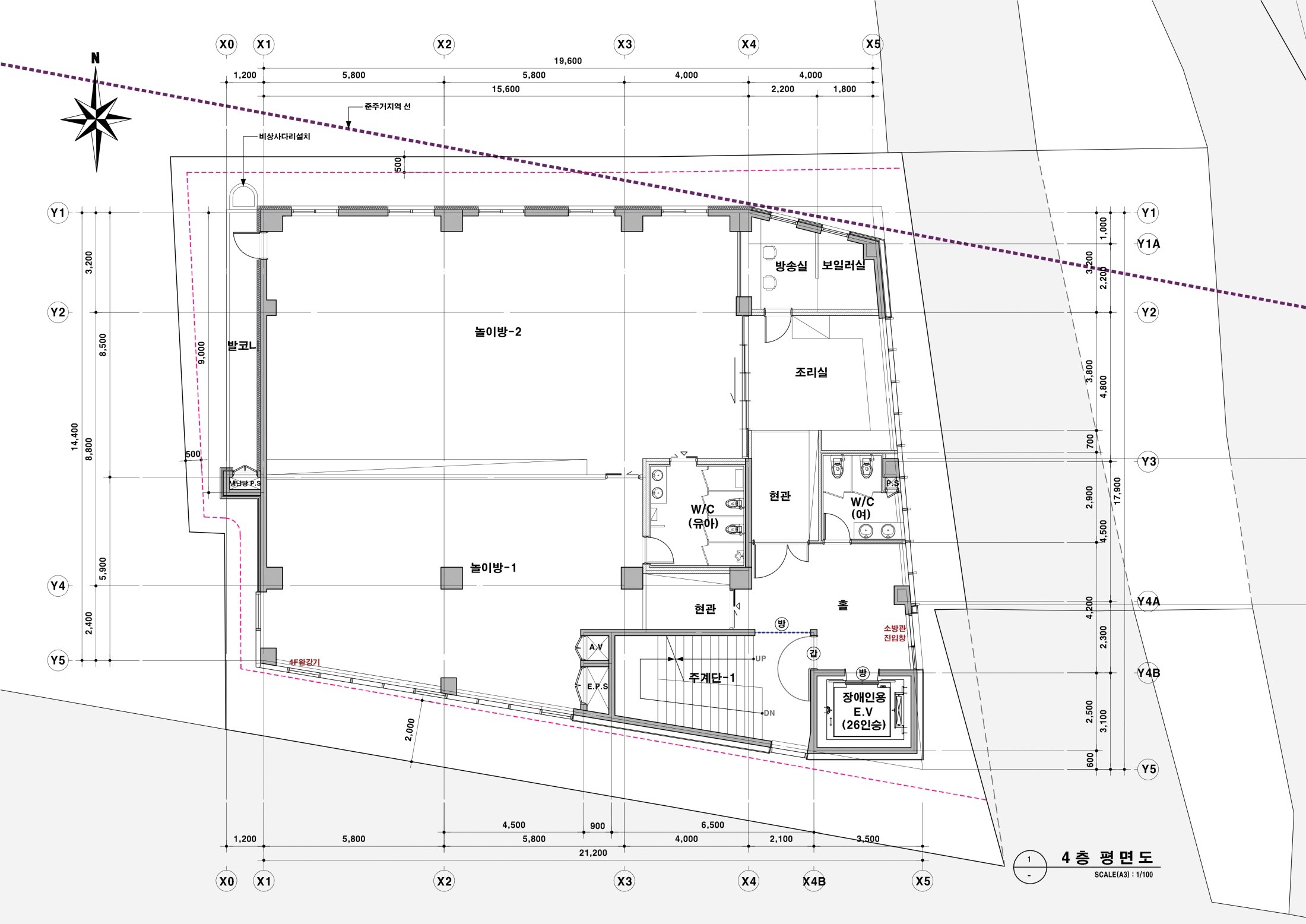
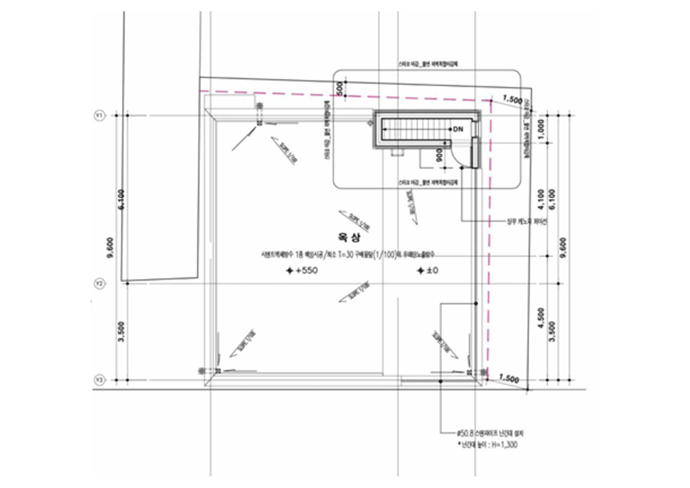
Floor Plan

  • 8F 옥상 : 태양광 설비 시설

  • 7F 회의실 및 소그룹실

  • 6F 다목적홀

  • 5F 교육실, 중·소 그룹실

  • 4F 놀이방, 아기학교

  • 3F 카페, 소그룹 모임실(새가족)

  • 2F 카페, 본당 연결 복도

  • 1F 피로티주차장, 주 출입구

대흥교회 60주년 기념관 부속동(전도본부 및 사택)

건축개요

Summary

연면적 213.09㎡(64평)
건물용도 주택, 근린생활시설
규모구조 지상3층, 철근콘크리트구조, 최고높이 11.7m
사용용도 1층:전도본부/2층:교육부교역자숙소/3층:관리집사사택

Floor Plan

  • 4F 옥상

  • 3F

  • 2F

  • 1F

대흥교회 60주년 기념관 설립

기공예배

대흥교회 60주년 기념관 설립

현장 Live

  • 01. 기초공사       

  • 02. 골조공사       

  • 03. 창호/벤트       

  • 04. 전기공사       

  • 05. 설비공사       

  • 06. 방수공사       

  • 07. 단열공사       

  • 08. 석고/내장       

  • 09. 인테리어       

  • 10. 외장공사       

  • 11. 지붕공사       

  • 12. 기타공사       

  • 13. 준공청소/완공       

처리중입니다. 잠시만 기다려주세요